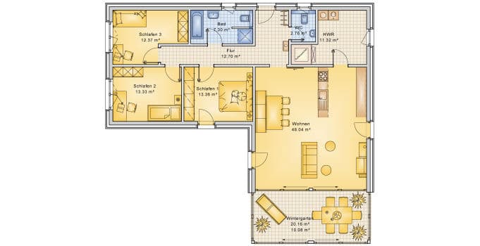
Sie haben von Ihrem Bungalow bereits ganz bestimmte Vorstellungen was den Grundriss, die Raumaufteilung oder die äußere Form betrifft? Dann sind individuell geplante Bungalows von Bio-Solar-Haus genau die richtige Lösung!
Lasen Sie sich von den Hausideen unserer Planer in Sachen Komfort, Barrierefreiheit sowie moderner, funktioneller und langlebiger Architektur aus dem Blick von Ingenieuren inspirieren.






