• qxio-ios-telephone0 63 62 | 92 270
  • qxio-emailinfo@bio-solar-haus.de

Wenig Technik. Viel Komfort.

Logo Bio-Solar-Haus

Baukostenbeispiel: Holzhaus Einfamilienhaus

Baukosten-Beispiel 180H20
Südansicht Holzhaus 180H20
Nordansicht Holzhaus 180H20
Grundriss EG
Holzhaus 180H20
Grundriss OG Holzhaus 180H20

2

Geschosse

180 m²

Wohnfläche

25°

Dachneigung

13,0 m

Länge

10,0 m

Breite

kein

Kniestock
Über den Flur auf der Nordseite können über kurze Wege das Gäste-Bad, der Hauswirtschafsraum, der Heizraum, das Büro sowie der großzügige Wohn- und Essbereich erreicht werden. Der Wintergarten befindet sich auf der Süd-West-Seite des Hauses und versorgt das Wohnzimmer und die Wohnküche mit viel Licht. Durch seine Ausrichtung fängt er die Sonnenstrahlen vom frühen Mittag bis in die Abendstunden ein.
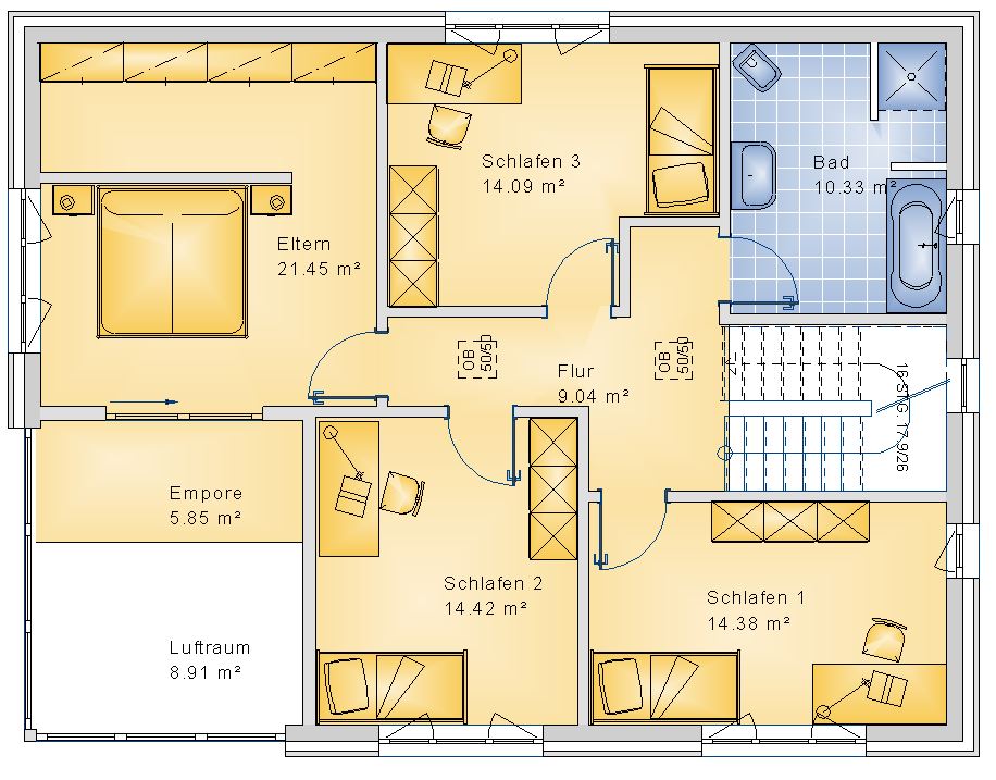
Der kompakte, zentrale Flur im Obergschoss führt zu dem Elternschlafzimmer, zu drei weiteren Räumen und ins Bad. Der Wintergarten verfügt über eine Empore mit einem weitläufigen Blick. Die große Ankleide im Elternschlafzimmer bietet einen großen und praktischen Stauraum. Die drei großen Räume können beliebig als Kinderzimmer oder zus. Büro genutzt werden.
Selbstbauhaus
177.569.- €
+ benötigtes Material
152.410.- €
= Ersparnis durch Eigenleistung
174.230.- €
Enthält die vollständige Architektenleistung, Holztragkonstruktion, Wärmedämmung und Baubetreuung.
Selbstbauhaus Plus
217.348.- €
+ benötigtes Material
130.889.- €
= Ersparnis durch Eigenleistung
151.627.- €
Zusätzlich zum Selbstbauhaus ist die vollständige Dacheindeckung enthalten.
Ausbauhaus
352.745.- €
+ benötigtes Material
56.237.- €
= Ersparnis durch Eigenleistung
112.403.- €
Enthält ein von außen, bis auf die Fassadengestaltung, fertiges Haus. Der Innenausbau liegt in Ihren Händen.
Schlüsselfertiges Haus
521.385.- €
Alle in der Baubeschreibung definierten Leistungen werden von uns erbracht (ohne Maler-, Tapezier- und Rollladenarbeiten).
Stand
September 2025
Grundlage ist die Bau- und Leistungsbeschreibung
Noch nicht in den Preisen enthalten ist die Bodenplatte oder der Keller
und die PV-Anlage 
Top
Wir benutzen Cookies

Wir nutzen Cookies auf unserer Website. Einige von ihnen sind essenziell für den Betrieb der Seite, während andere uns helfen, diese Website und die Nutzererfahrung zu verbessern (Tracking Cookies). Sie können selbst entscheiden, ob Sie die Cookies zulassen möchten. Bitte beachten Sie, dass bei einer Ablehnung womöglich nicht mehr alle Funktionalitäten der Seite zur Verfügung stehen.